Bradford West Gwillimbury, ON L3Z 4R1,13 Elgin CT
Bradford West Gwillimbury, ON L3Z 4R1,13 Elgin CT
Bradford West Gwillimbury, ON L3Z 4R1,13 Elgin CT
5
See all 5 photos
$699,900
Est. payment /mo
Save
3 Beds
3 Baths
New

13 Elgin CT Bradford West Gwillimbury, ON L3Z 4R1

Save
REQUEST A TOUR If you would like to see this home without being there in person, select the "Virtual Tour" option and your agent will contact you to discuss available opportunities.
In-PersonVirtual Tour
Tue
13
Jan
Wed
14
Jan
Thu
15
Jan

UPDATED:

Key Details

Property Type Townhouse

Sub Type Att/Row/Townhouse

Listing Status Active

Purchase Type For Sale

Approx. Sqft 1100-1500

Subdivision Bradford

MLS Listing ID N12683066

Style 3-Storey

Bedrooms 3

Tax Year 2025

Property Sub-Type Att/Row/Townhouse

Lot Depth 95.0

Lot Front 18.0

Property Description

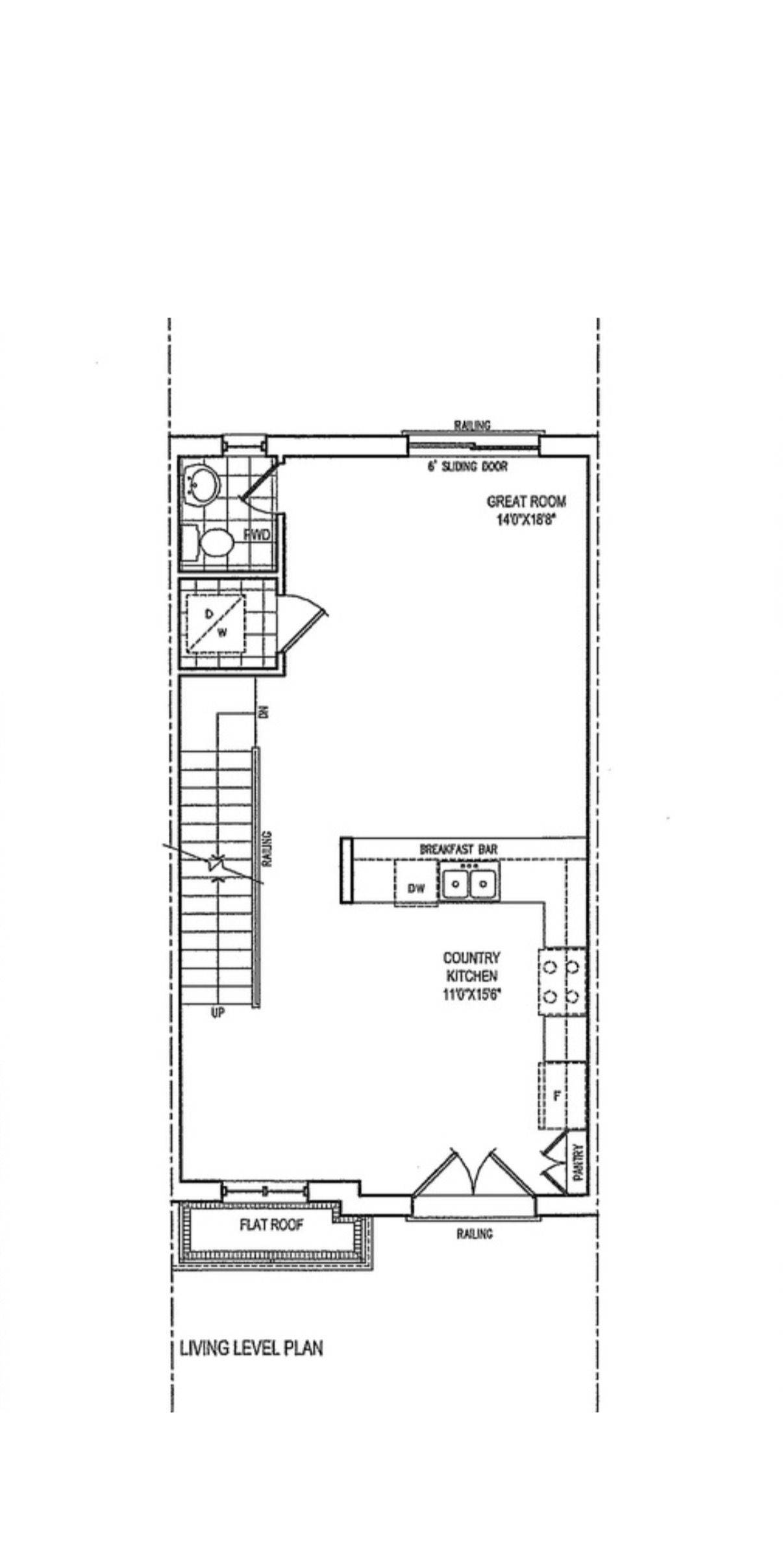
Welcome to this stunning all-brick "Daisy Design" built by FirstView Homes, offering 1,464 sq. ft. of thoughtfully designed living space. This home features a walk-out basement, providing endless potential for future customization.The spacious open-concept main floor is perfect for both comfortable living and entertaining. Enjoy a bright and airy atmosphere with 9' smooth ceilings, rich hardwood flooring, and a charming Juliet balcony that fills the space with natural light.The chef-inspired kitchen is a standout, boasting elegant quartz countertops, an extended breakfast bar, and tall upper cabinetry-ideal for both meal preparation and storage.Upstairs, a stained oak staircase leads to three generously sized bedrooms, perfect for growing families or guests.Located in a boutique enclave of freehold townhomes in the heart of Bradford, this pre-construction home is anticipated to be ready by Fall 2026. Enjoy convenient access to public transit, Hwy 400, local schools, and the GO Train-just a short 6-minute drive away.There's still time to select your interior finishes, allowing you to personalize your home to suit your style. Additional other interior and end-unit plans are also available.Note: This is NOT an assignment sale, giving you peace of mind throughout the process. Don't miss out on this exceptional opportunity-book a showing today!

Location

Province ON

County Simcoe

Area Simcoe

Rooms

Family Room No

Basement Unfinished, Walk-Out

Kitchen 1

Interior

Interior Features None

Cooling None

Fireplace No

Heat Source Gas

Exterior

Parking Features Mutual

Garage Spaces 1.0

Pool None

Roof Type Asphalt Shingle

Topography Flat

Lot Frontage 18.0

Lot Depth 95.0

Total Parking Spaces 3

Building

Building Age New

Unit Features Library,Place Of Worship,School,Rec./Commun.Centre,Public Transit

Foundation Concrete

Others

Security Features None

ParcelsYN No


Listed by COLDWELL BANKER RONAN REALTY

GET MORE INFORMATION

Kenneth Yim

Kenneth Yim

Broker of Record | License ID: 9524831

+1(647) 496-2269

Full Name
Phone*
Message

BOOK A VISIT

13 Elgin CT

MORTGAGE CALCULATOR

Price of Homes
$
Down Payment
$
Loan Term
Interest Rate
Home Insurance (optional)
$
Property Tax (optional)
$
Mortgage values are calculated by Lofty and are for illustration purposes only, accuracy is not guaranteed.

AFFORDABILITY CALCULATOR

Use this calculator to determine how much house you can afford. By entering details about your income, down payment, and monthly debts, you can estimate the mortgage amount that works with your budget.
$
$
$
%
Advanced
You can afford a home up to: $0
Your debt-to-income ratio is 36%
Quite affordable.
View Affordable Properties
Payment Breakdown:
$0 Month